- Яка висота розеток від підлоги насправді важлива?
- Основні аспекти вибору висоти розеток
- Традиційні підходи до вибору висоти розеток
- Індивідуальний підхід: що варто врахувати
- Електробезпека та висота розеток
- Вплив регіональних умов на вибір висоти розеток
- Заключна думка: висота розеток — більше, ніж просто цифра
Яка висота розеток від підлоги насправді важлива?
Яка висота розеток від підлоги? Це питання може здатися незначним, але! Вибір правильного рівня розеток здатен вплинути на комфорт і естетику житла. Розуміння цих аспектів важливо, щоб уникнути неприємних помилок, які можуть виникнути в майбутньому.
Основні аспекти вибору висоти розеток
Перш ніж прийняти рішення про висоту розеток від підлоги, важливо врахувати кілька факторів. Не просто технічні норми та стандарти визначають цей вибір, але й особисті вподобання та практичність.
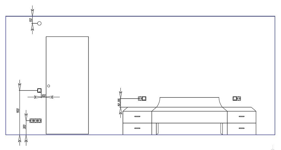
- Стандартизація: Існують певні стандарти, які регулюють висоту розеток. Зазвичай, це 30 см для загальних потреб, але іноді потрібна інша висота, залежно від місця
- Функціональність: Поміркуйте про те, як ви використовуєте приміщення. Висота повинна відповідати потребам користувачів.
- Естетика: Важливо враховувати не лише практичну сторону, а й естетичний вигляд.
Традиційні підходи до вибору висоти розеток

Вибір висоти часто ґрунтується на роками перевірених підходах, які застосовуються у більшості житлових і комерційних просторів:
- Навіть рівень від підлоги: Як правило, загальна висота розеток у житлових приміщеннях складає 30 см від підлоги. Це зручно для підключення побутових приладів.
- Висота залежно від призначення: У кухні та ванній розетки можуть бути розміщені вище, залежно від розташування стільниць або раковин.
Індивідуальний підхід: що варто врахувати
Відхилення від стандартизованої висоти розеток може надати вашому простору особливого вигляду, проте:
- Власні вподобання: Врешті, обирайте те, що подобається саме вам, це ж ваше житло!
- Доступність для дітей та осіб із обмеженими можливостями: Важливо врахувати, чи є в домі діти або особи, яким може бути складно користуватися розетками на стандартній висоті.
Електробезпека та висота розеток
Окрему увагу слід звернути на безпеку. Вибір висоти може вплинути на рівень електробезпеки у вашому житлі. Ось на що варто зважити:
- Захист від вологи: Більш висока розміщення розеток у вологих приміщеннях, таких як ванні кімнати та кухні, допомагає уникнути випадкового потрапляння вологи.
- Захист для дітей: Висота розеток у дитячих кімнатах — важливий фактор, щоб запобігти небажаним «дослідженням» малюка.
| Приміщення | Рекомендована висота розеток |
|---|---|
| Житлові кімнати | 30 см від підлоги |
| Кухня | 15-20 см від стільниць |
| Ванні кімнати | Вище рівня запобігання потраплянню вологи |
Вплив регіональних умов на вибір висоти розеток
Не можна забути і про те, що в різних регіонах України можуть бути специфічні вимоги та традиції. Виникають ситуації, коли ви зіштовхуєтеся з відмінностями, які можуть здаватись незначними… але вони важливі! Наприклад, у старих будинках Карпат висота розеток може бути іншою виключно з-за архітектурних особливостей. І це частина їхнього шарму.
Заключна думка: висота розеток — більше, ніж просто цифра
Хоч це й здається детальністю, яка не заслуговує на увагу, висота розеток від підлоги — ключовий аспект у створенні зручного, безпечного і стильного житлового простору. Пам’ятайте про стандарти, власні вподобання, а також специфіку вашого житла та його жителів.
Насолоджуйтесь процесом створення вашого ідеального простору, підбираючи висоту розеток, орієнтуючись на власний стиль і комфорт!







